回转式格栅除污机机械格栅清污机循环式格栅机粗细清污捞渣机
GSHZ型回转式格栅除污机(又称固液分离器),广泛应用于城市污水处理厂、自来水厂、泵站、电厂进水口,自动拦截并清除水中的漂浮物,保证下道工序的正常运行;也可用作纺织、印
GSHZ型回转式格栅除污机(又称固液分离器),广泛应用于城市污水处理厂、自来水厂、泵站、电厂进水口,自动拦截并清除水中的漂浮物,保证下道工序的正常运行;也可用作纺织、印




主要特点:
结构紧凑、电气控制简单,便于实现自动化;耐蚀性优、能耗小、噪音低;除污动作连续、排污干净、分离效率高。
工作原理:
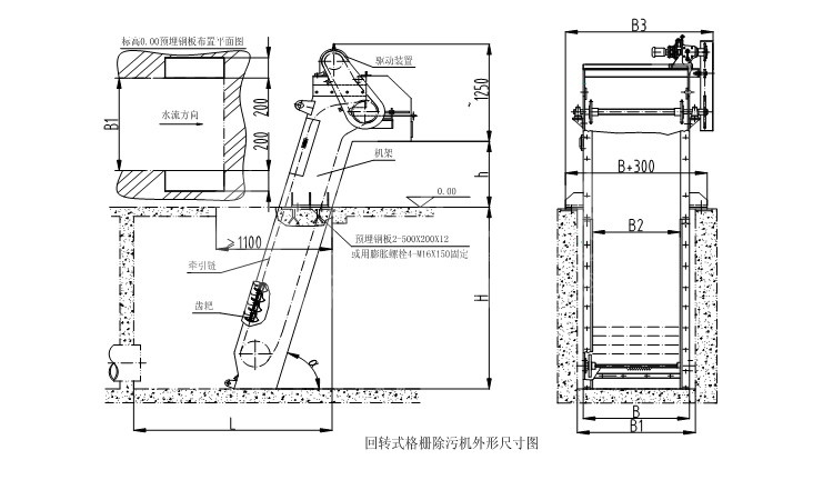
该设备是由ABS工程塑料、尼龙或不锈钢制成的特殊形耙齿,按一定的排列次序装在耙齿轴上形成封闭式耙齿链,其下部装在进水渠水中。当传动系统带动链轮作匀速定向旋转时,整个耙齿链便自上而下运动,并携带固体杂物从液体中分离出来,流体通过耙齿间隙流出去,整个工作状态连续进行。
由于耙齿的特殊结构形状,使耙齿链携带杂物到达上端反向运动时,前后耙间产生相对自清运动,促使杂物依靠重力脱落,设备后面可设置旋转的清污刷,进一步除净滞留在耙齿污物,如需要定货时需注明。








联系电话
微信扫一扫